Loading images
Biografia
CLAUDIO BARBISOTTI
Contatti
ARCHITETTO
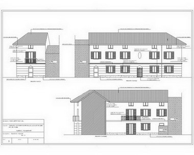
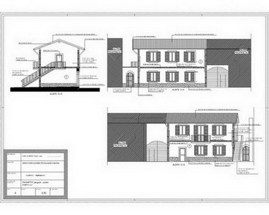
... Altri Progetti ...
( Partita IVA 05671250966 )